- Woonoppervlakte
- Circa 127 m²
- Perceeloppervlakte
- Circa 202 m²
- Bouwjaar
- Gebouwd in 1978
- Aantal kamers
- 5 kamers (4 slaapkamers)
Entree
Je komt binnen in een lichte en verzorgde hal met trapopgang naar de eerste verdieping.
Wonen & Koken
De ruime woonkamer voelt direct aangenaam aan dankzij de mooie vloer en lichte wanden. De aanwezige airco zorgt hier het hele jaar door voor een comfortabel binnenklimaat. Via de tuindeuren stap je zo de tuin in, waardoor binnen en buiten mooi in elkaar overlopen. Aansluitend vind je een praktische bijkeuken met was- en droogaansluiting en een toilet — ideaal voor het dagelijkse gemak. De strakke hoogglans keuken is voorzien van diverse inbouwapparatuur en biedt alles wat je nodig hebt om heerlijk te koken.
Slapen, Dromen & Douchen
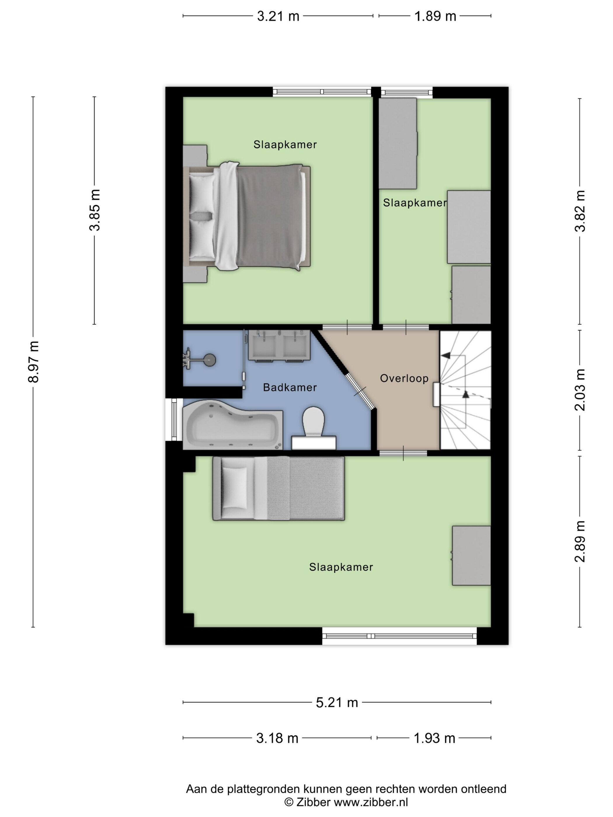
Op de eerste verdieping bevinden zich drie slaapkamers. De master bedroom is ruim, licht en voorzien van airco — een heerlijke plek om tot rust te komen. Daarnaast zijn er nog twee kamers, waarvan één royaal en één wat compacter, perfect als kinder-, werk- of logeerkamer. De moderne badkamer is stijlvol afgewerkt en uitgerust met een ligbad, douche en dubbele wastafel: een fijne plek om de dag te beginnen of ontspannen af te sluiten. De tweede verdieping biedt nog een overloop en een ruime vierde slaapkamer, eveneens voorzien van airco, ideaal als extra slaapkamer, werkruimte of hobbykamer.
Tuinieren, Zonnen & Genieten
De achtertuin is verzorgd aangelegd met een betegeld terras, gazon en sfeervolle borders. Hier kun je heerlijk genieten van het buitenleven. Daarnaast is er een praktische berging aanwezig voor fietsen en opslag.
Omgeving en Faciliteiten
De woning is gelegen in een fijne en gewilde woonomgeving in Roosendaal. In de nabijheid vind je scholen, winkels en andere dagelijkse voorzieningen. Ook de bereikbaarheid is goed, waardoor je snel op weg bent richting omliggende steden.
Sfeer en Doelgroep
Deze woning straalt een moderne, frisse en comfortabele sfeer uit. Ideaal voor gezinnen die op zoek zijn naar ruimte en gemak, maar ook zeker geschikt voor stellen die extra kamers wensen voor werk of hobby. Dankzij de airco’s en zonnepanelen woon je hier bovendien energiezuinig en toekomstgericht.
Toelichtingsclausule NEN2580
De Meetinstructie is gebaseerd op de NEN2580. De Meetinstructie is bedoeld om een meer eenduidige manier van meten toe te passen voor het geven van een indicatie van de gebruiksoppervlakte. De Meetinstructie sluit verschillen in meetuitkomsten niet volledig uit, door bijvoorbeeld interpretatieverschillen, afrondingen of beperkingen bij het uitvoeren van de meting.
Overdracht
- Vraagprijs
- € 380.000 k.k.
- Status
- Beschikbaar
- Aanvaarding
- In overleg
Bouw
- Object type
- Eengezinswoning, hoekwoning
- Soort bouw
- Bestaande bouw
- Bouwjaar
- 1978
- Soort dak
- Zadeldak bedekt met pannen
Oppervlakte en inhoud
- Woonoppervlakte
- 127 m²
- Perceeloppervlakte
- 202 m²
- Inhoud
- 451 m³
- Externe bergruimte
- 18 m²
Indeling
- Aantal kamers
- 5 kamers (4 slaapkamers)
- Aantal badkamers
- 1 badkamer
- Badkamervoorzieningen
- Ligbad, toilet, douche, wastafel, wastafelmeubel
- Aantal woonlagen
- 3 woonlagen
- Voorzieningen
- Rolluiken, airconditioning, zonnepanelen
Energie
- Energielabel
- B
- Energielabel registratie
- 17-08-2020
- Isolatie
- Muurisolatie, vloerisolatie, dubbel glas
- Verwarming
- Cv-ketel, warmte terugwininstallatie
- Warm water
- Cv-ketel
- Cv ketel
- Intergas xtreme 36 combiketel gas gestookt uit 2023 (eigendom)
Buitenruimte
- Tuin
- Achtertuin
Bergruimte
- Schuur / berging
- Vrijstaand steen
Garage
- Soort garage
- Geen garage
Parkeergelegenheid
- Soort parkeergelegenheid
- Openbaar parkeren
Energieverbruik in Roosendaal
Energielabel deze woning
Energielabel B
Publicatie energielabel: 17-08-2020
Stroomverbruik per jaar
(Gemiddelde hoekwoning in Roosendaal)
Gasverbruik per jaar
(Gemiddelde hoekwoning in Roosendaal)
* Cijfers zijn afkomstig van het CBS en bedoeld als indicatie en kunnen verschillen voor deze woning
Indicatie hypotheeklasten
Eigen inleg:
Spaargeld / overwaarde
Rente:
Laagste 10-jaars rente
Laagste 10-jaars rente
2,78% - Centraal Beheer - NHG
3,04% - Centraal Beheer - 80%
Laagste 20-jaars rente
3,29% - Centraal Beheer - NHG
3,52% - Centraal Beheer - 80%
Laagste 30-jaars rente
3,41% - Centraal Beheer - NHG
3,7% - Argenta - 80%
Hypotheek:
Bruto maandlasten: € 0 p/m
Netto maandlasten: € 0 p/m
Hoe berekenen we dit?
Het rentepercentage is gebaseerd op de laagste 10 jaars vaste rente voor één hypotheekdeel. De vermelde rente (2.78% met NHG) is gecontroleerd op 09-04-2026. Deze berekening is gebaseerd op een annuïteitenhypotheek die volledig wordt afgelost, waarbij de maandlasten gedurende de gehele looptijd gelijk blijven. De werkelijke rente en netto maandlasten kunnen variëren, afhankelijk van uw persoonlijke situatie en de hypotheekverstrekker. Raadpleeg een financieel adviseur voor een nauwkeurige berekening en advies. Aan deze berekening kunnen geen rechten worden ontleend; het dient enkel als indicatie.
Documentatie
Kadastrale kaart
Leefomgeving
Brochure
Plattegronden PDF
WOZ waarderapport
BAG uittreksel
Bezichtiging
Bod uitbrengen
Waardebepaling
Zoekopdracht
Alles downloaden
Zonnegrenzen bekijken
Inwoners in Roosendaal
Cijfers voor postcodegebied 4706
- Totaal aantal inwoners
- 11315 inwoners
- Mannen
- 49%
- Vrouwen
- 51%
Inwoners in Roosendaal
Cijfers voor postcodegebied 4706
- tot 15 jaar
- 16%
- 15 tot 25 jaar
- 11%
- 25 tot 35 jaar
- 20%
- 45 tot 65 jaar
- 30%
- 65 en ouder
- 22%
Huishoudens in Roosendaal
Cijfers voor postcodegebied 4706
- Eenpersoons zonder kinderen
- 26%
- Meerpersoons zonder kinderen
- 35%
- Huishoudens zonder kinderen
- 61%
Huishoudens in Roosendaal
Cijfers voor postcodegebied 4706
- Huishoudens met één kind
- 8%
- Huishoudens met meerdere kinderen
- 31%
- Huishoudens met kinderen
- 39%
Woningen in Roosendaal
Cijfers voor postcodegebied 4706
- Woningen voor 1945
- 2%
- Woningen tussen 1945 en 1965
- 1%
- Woningen tussen 1965 en 1975
- 6%
- Woningen tussen 1975 en 1985
- 68%
- Woningen tussen 1985 en 1995
- 4%
Woningen in Roosendaal
Cijfers voor postcodegebied 4706
- Woningen tussen 1995 en 2005
- 9%
- Woningen tussen 2005 en 2015
- 10%
- Woningen na 2015
- 1%
- Huurwoningen
- 30%
- Koopwoningen
- 70%
Overige in Roosendaal
Cijfers voor postcodegebied 4706
- Gemiddelde WOZ waarde
- € 263.000,-
- Personen onder de 65 met uitkering
- 8%
Overige in Roosendaal
Cijfers voor postcodegebied 4706
- Adressen per km²
- 1326
- Stedelijkheid (schaal 1 op 5)
- 60%
Vakidioten met een passie voor vastgoed
Bij C&R Makelaars draait alles om jou en je woning. Wij zijn een frisse, energieke generatie makelaars met een passie voor mensen en de woningmarkt.
We geloven in een persoonlijke aanpak zonder poespas: eerlijk, transparant en altijd met een flinke dosis enthousiasme. Het verkopen van je huis is een belangrijke stap, en daarom begeleiden we je op een manier die bij jou past, van begin tot eind.
Met onze diepgaande kennis van de lokale markt geven we je waardevol advies dat perfect aansluit bij jouw situatie én dat van potentiële kopers.
Daarnaast staat ons creatieve team van vastgoedmarketeers klaar om jouw woning in de schijnwerpers te zetten. Met slimme en doordachte strategieën zorgen we ervoor dat je huis opvalt en het maximale resultaat behaalt.
Jouw tevredenheid is ons einddoel. We zetten alles op alles om je verwachtingen te overtreffen. Nieuwsgierig naar ons team? Klik op de button hieronder en maak kennis met ons!